Aktuálně můžete v lokalitě Plzeň vybírat z nabídky 331 bytů.
Přehled nemovitostí: pronájem byty > 4+1 Zpět na přehled nabídek

Pronájem, Byt 4+1, Plzeň

neuvedeno

104 m2

osobní

G - Mimořádně nehospodárná

2914

17.04.2026

Cena: 40000 CZK / objekt / měsíc
Poznámka k ceně: služby, elektřina a plyn 9.500,-, vratná kauce, poplatek RK 1

Poslat dotaz k nabídce
Zásady používání osobních údajů

Prodejce

Makléř: Monika Černíková

Telefon: 704 391 ...

E-mail: info@rk ...

Zobrazit celý kontakt

Nemovitost nabízí

RK Adriana

Na Lysinách 457, 14700 Praha

rkadriana.cz

Zobrazit kontakt na RK

Zobrazit všechny nabídky RK

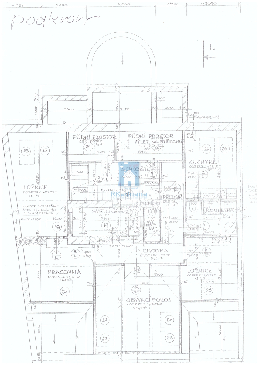
Nabízíme k pronájmu prostorný podkrovní byt o dispozici 4+1 a celkové výměře 107 m2, který se nachází v 5. patře budovy s výtahem v ulici Hálkova, Plzeň - Jižní Předměstí. Nemovitost je vhodná nejen k bydlení, ale také jako kancelářské prostory. V budově je k dispozici recepce, která zajišťuje komfort a reprezentativní zázemí. K užívání je také příjemný dvorek ve vnitrobloku, ideální pro odpočinek či neformální setkání. V objektu jsou k dispozici i další prostory o následujících výměrách: suterén: 21 m2 přízemí: 59,7 m2 a 38 m2 patro: 125,7 m2 patro: 125,7 m2 patro: 125,2 m2 patro: 133,4 m2 (obsazeno) patro: 104,3 m2 Majitel si vyhrazuje právo vybrat nájemce a dává přednost zájemcům o dlouhodobý pronájem, kteří prokáží finanční stabilitu a spolehlivost. Více informací rádi poskytneme v realitní kanceláři nebo po telefonu. Prohlídky jsou možné po domluvě. V případě zájmu o více informací nás neváhejte kontaktovat v naší realitní kanceláři.



Nahoru