Makléř: Consulting, a.s. Broker
Telefon: 800 100 ...
E-mail: okreali ...
Zobrazit celý kontaktTelefon: 800 100 164, 800 100 164
E-mail: okrealitnisluzby@bcas.cz
Nemovitost nabízí
Realityspolu
Avenir Business Park Radlická 751/113E, 158 00 Praha 5
Zobrazit kontakt na RK800 100 164
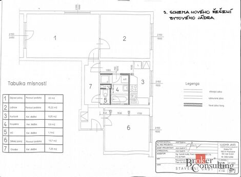
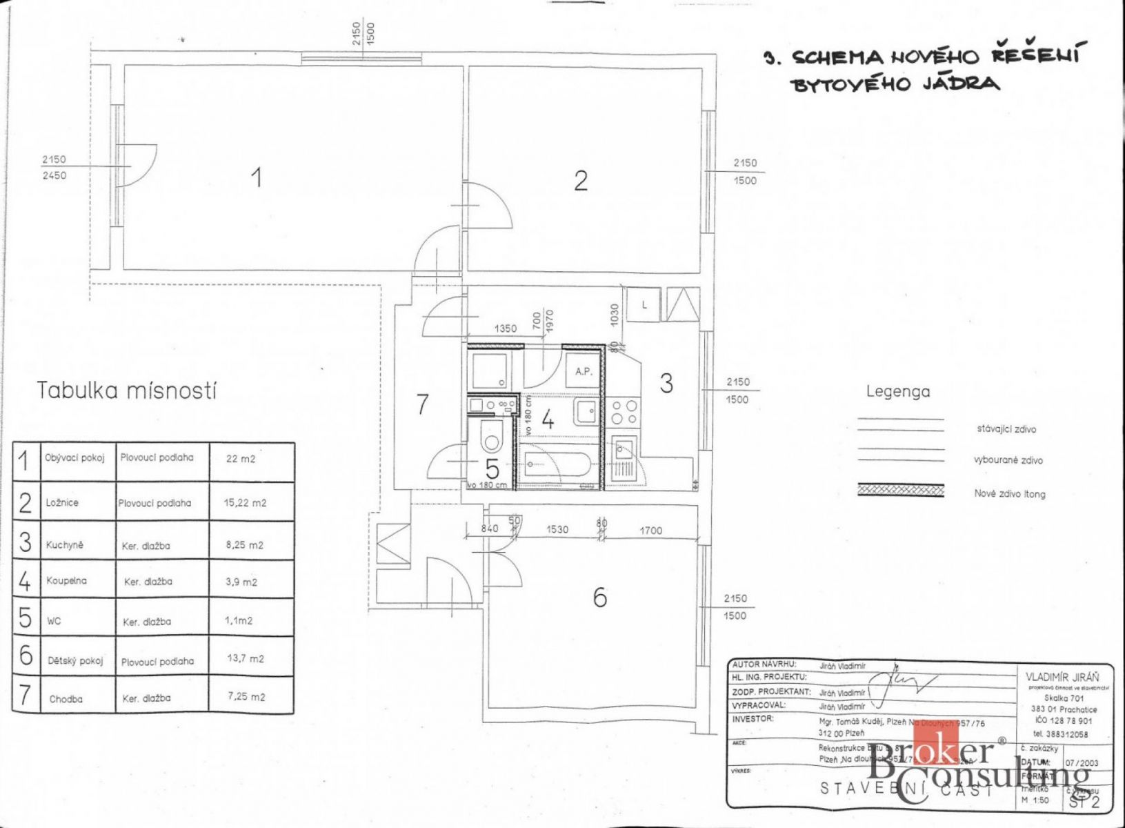
K prodeji byt o dispozici 3+1 s balkonem a celkové výměře 68,8 m, nacházející se v Plzni Doubravce, ulice Na Dlouhých. Byt je situován ve 2. podlaží bytového domu. Byt prošel rekonstrukcí a je připraven k okamžitému nastěhování. Dispozice zahrnuje kuchyň, obývací pokoj, samostatný pokoj, ložnici, koupelnu a WC. Standard bytu tvoří 3-komorová plastová okna, vestavěné skříně (chodba, koupelna, ložnice) a plovoucí podlahy v kombinaci s dlažbou, které zajišťují moderní a praktické bydlení. Dům prošel revitalizací a nabízí nadstandardní komfort vstup je možný z obou stran, z toho jeden je bezbariérový. K dispozici je velký výtah a reprezentativní vstupní prostory. Vstup do domu je zabezpečen čipovým systémem a kamerami. Byt se nachází v klidné lokalitě s kompletní občanskou vybaveností a dobrou dostupností do centra města. <a href="https://www.eurobydleni.cz/byty/2_1/brno/obec-kralovo-pole/pronajem/"><strong>Pronájem bytu 2+1 Brno-město, Královo Pole</strong></a>
Prodej bytu 3+1 78 m2 Hodonínská, Plzeň
Prodej bytu 3+1, Plzeň Severní Předměstí, ul. Hodonínská Nabízíme k prodeji bytovou jednotku o dispozici 3+1 v žádané lokalitě Plzeň Severní…
Prodej bytu 3+1 82 m2, Plzeň - Severní Předměstí
Popis nemovitosti Představuji Vám k prodeji prostorný byt o dispozici 3+1 a velikosti 82m2 + lodžie a sklep, po kompletní velmi zdařilé rekonstrukci…
Prodej bytu 3+1 Plzeň na Eurobydleni.cz