Aktuálně můžete v lokalitě Plzeň vybírat z nabídky 346 bytů.
Přehled nemovitostí: pronájem byty > 1+kk Zpět na přehled nabídek

Pronájem, Byt 1+kk, Plzeň

neuvedeno

43 m2

osobní

B - Velmi úsporná

22263

24.03.2026

Cena: 15000 CZK / objekt / měsíc
Poznámka k ceně: + záloha na služby 3.100 | El. převod na nájemce | Jistota 30.000 | Provize 15.000 1

Poslat dotaz k nabídce
Zásady používání osobních údajů

Prodejce

Makléř: Libor Hula

Telefon: 608 120 ...

E-mail: galager ...

Zobrazit celý kontakt

Nemovitost nabízí

Libor Hůla KUZO Partners

www.kuzopartners.cz

Zobrazit kontakt na RK

Zobrazit všechny nabídky RK

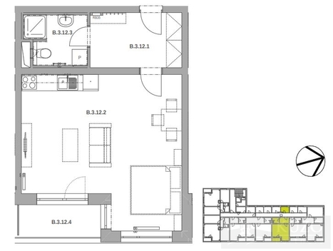
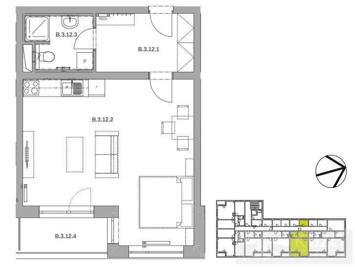
Nabízíme k pronájmu moderní a prostorný byt 1 + kk nacházející se na ulici Pilařská v části obce Doubravka, Plzeň. Tento byt v osobním vlastnictví o celkové užitné ploše 43,6 m2 se nachází ve druhém patře novostavby cihlového domu s bezbariérovým přístupem a výtahem, což zajišťuje komfortní bydlení pro všechny jeho obyvatele. Jednou z předností tohoto bytu je prostorná předsíň, která poskytuje dostatek místa pro uložení obuvi a kabátů a jehož součástí je velká vestavěná skříň. K bytu náleží také prostorný (sklep) místnost s vestavěnou skříní, okny, který se nachází přímo naproti bytovým dveřím. Byt je navržen s důrazem na úsporné energetické řešení, což přispívá k nízkým nákladům na energie. Kuchyňská část bytu je plně vybavená moderními elektrospotřebiči, včetně elektrické varné desky, pečící trouby, digestoře, myčky a ledničky s mrazničkou, což jistě potěší každého milovníka vaření. Velkorysá lodžie nabízí dostatek prostoru pro posezení a užívání si slunečných chvil, zatímco velká okna propouštějí do interiéru dostatek denního světla. Koupelna je prostorná a vybavená sprchovým koutem, moderním prosvětleným, kruhovým zrcadlem. Příprava na pračku je samozřejmostí. Podlahy v bytě jsou kombinací kvalitního vinylu a keramické dlažby, které dotvářejí moderní vzhled celého bydlení. Užitná plocha bytu 45,3 m2 Obývací pokoj 31,13 m2 Předsíň 7,19 m2 Koupelna 4,15 m2 Lodžie 3,91 m2 Sklep 6,03 m2 Dům disponuje krytým parkovacím stáním pod domem, což zajišťuje pohodlné parkování a další komfort pro obyvatele. Parkovací kryté stání je za 2.000,-Kč měsíčně. Do vnitrobloku je vjezd pouze přes závoru. V okolí bytu je plná občanská vybavenost, včetně dostupnosti MHD, autobusových spojení. Tento byt představuje ideální volbu pro ty, kteří hledají moderní a komfortní bydlení v příjemné lokalitě s veškerou potřebnou infrastrukturou. V případě zájmu o prohlídku nás neváhejte kontaktovat.



Nahoru