Makléř: Martin Štrunc
Telefon: 734 279 ...
E-mail: martin@ ...
Zobrazit celý kontaktTelefon: 734 279 234
E-mail: martin@struncmartin.cz
Nemovitost nabízí
TOP realitní centrum s.r.o.
Částkova 689/74, Plzeň
Zobrazit kontakt na RK
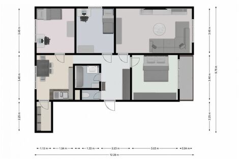
Ve výhradním zastoupení majitele nabízíme k prodeji prostorný byt 4+1 o podlahové ploše 78 m s lodžií 4 m, situovaný ve 3. patře zatepleného panelového domu v ulici Žlutická, Plzeň Bolevec. Byt prošel rozsáhlou modernizací, která zahrnuje novou koupelnu se sprchovým koutem, zánovní kuchyňskou linku na míru s vestavěnými spotřebiči (myčka, trouba, plynová varná deska), podlahové krytiny (plovoucí podlaha a lepený vinyl) a vestavěné skříně poskytující dostatek úložného prostoru. Plastová okna s trojsklem zajišťují výbornou tepelnou i zvukovou izolaci. Jedním z hlavních benefitů bytu je lodžie orientovaná na jih, která nabízí příjemné posezení s dostatkem denního světla. Dispozice bytu je velmi praktická čtyři neprůchozí pokoje zajišťují dostatek soukromí pro každého člena domácnosti. K bytu náleží sklep o ploše 2 m. V domě je k dispozici kočárkárna a kolárna. Samozřejmostí je výtah. Dům je situován na okraji sídliště, což přináší klidné bydlení s rychlou dostupností přírody. Lokalita je ideální pro rodiny i aktivní jedince. V těsné blízkosti naleznete park se sportovišti a dětskými hřišti, stejně jako les vhodný pro procházky a volnočasové aktivity. Veškerá občanská vybavenost je v dosahu v okolí jsou obchody, supermarket, základní i mateřské školy, zdravotnická zařízení a zastávka MHD. Pro více informací o této nemovitosti nebo sjednání prohlídky nás prosím kontaktujte nebo vyplňte formulář.
Prodej bytu 4+1, 79 m2, Plzeň, ul. Komenského
Prodej velmi prostorného bytu 4+1 o ploše 79 m2 v klidné části Severní Předměstí, Plzeň. Byt se nachází ve 4.NP revitalizovaného panelového domu s…
Prostorný byt 4+1 po rekonstrukci s výtahem a výbornou dostupností
EXKLUZIVNÍ NABÍDKA PRODEJE PROSTORNÉHO BYTU 4+1 PLZEŇ, BOLEVEC, SOKOLOVSKÁ ULICE Nabízíme k prodeji výjimečný byt o dispozici 4+1, nacházející se v…
Prodej bytu 4+1 Plzeň na Eurobydleni.cz