Makléř: Ing. Šimek Radek
Telefon: 720 756 ...
E-mail: radek.s ...
Zobrazit celý kontaktTelefon: 720 756 287
E-mail: radek.simek@century21.cz
Nemovitost nabízí
CENTURY 21 The Most Reality
U Věžových domů 2934/5, 434 01 Most
www.century21.cz/kancelar-the-most-reality
Zobrazit kontakt na RK
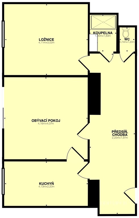
Nabízím k prodeji byt 2+1 o krásných 67,6 m2 - takže konečně dost místa na to, abyste doma nechodili bokem. Celý byt prošel kompletní rekonstrukcí, takže se nemusíte bát, že při prvním zapnutí světla vyhodíte pojistky v půlce baráku. Na chodbě vás přivítá nové LED osvětlení a prostor připravený pro vestavěnou skříň, takže už žádné rozházené boty, které vám každé ráno málem zlomí kotník. Obývák zdobí francouzské okno - ideální na to, abyste ráno mohli dramaticky roztáhnout závěsy a cítit se jako ve filmu. Kuchyň je připravena k instalaci vlastní linky, takže si můžete splnit sen o kuchyni, ve které budete vařit… nebo si aspoň budete dělat kafe s větším stylem. K bytu patří i nadstandardně velký sklep. Tak velký, že tam pohodlně uložíte nejen kola a lyže, ale klidně i všechny věci, které "možná někdy budete potřebovat" (a nikdy nepotřebujete). Dům má nový výtah - což oceníte hlavně po nákupu nebo po návštěvě tchyně, když budete utíkat zpátky nahoru. Lokalita je klidná, škola i školka jsou za rohem, takže děti můžete prakticky vyslat v pyžamu a ještě to stihnou. Sportoviště je hned za domem - ideální pro ty, kteří milují sport… nebo alespoň rádi říkají, že milují sport. Zastávka Slovany je asi 250 metrů od domu, takže domů trefíte i v případě, že nevíte, kde máte brýle. Pokud hledáte byt, který má styl, světlo, humor a prakticky žádné vady na kráse, tohle je váš favorit. A pokud se chcete pobavit i naživo, rád vám ho ukážu. V případě více zájemců bude kupující vybrán formou nejlepší nabídky.
Prodej, byty/2+1, 59 m2, Křížkova 479/1, 30100 Plzeň, Plzeň-město [ID 80112]
Prodej bytu 2+1, Plzeň ulice Křížkova Nabízíme k prodeji byt o dispozici 2+1, který se nachází v suterénu cihlového domu v Plzni, v ulici Křížkova.…
Prodej, byt 2+1, 98 m2, Plzeň, ul. Kardinála Berana
Na prodej prostorný byt 2+1 se zahradou. Byt se nachází v prvním patře opraveného bytového domu v Plzni - Jižní Předměstí. Má praktickou kuchyňskou…