Makléř: Kantner Jan
Telefon: 739 367 ...
E-mail: kantner ...
Zobrazit celý kontaktTelefon: 739 367 279
E-mail: kantner@pubec.cz
Nemovitost nabízí
REALITNÍ KANCELÁŘ PUBEC, s.r.o.
Šafaříkovy sady 2455/5, 301 00 Plzeň
Zobrazit kontakt na RK377 226 767
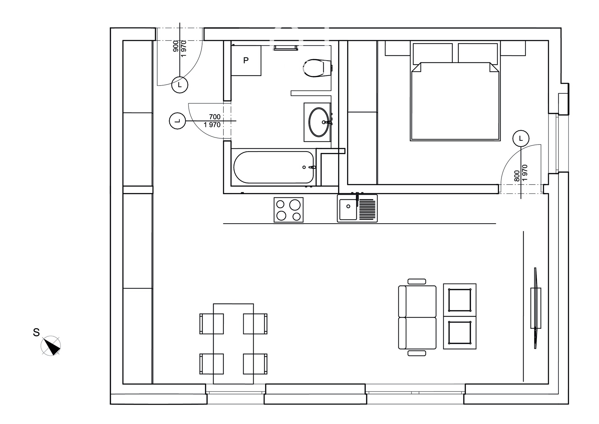
Máme pro Vás připraven nový projekt pod názvem „Byty Na Okraji“. Předmětná jednotka 2kk o výměře 55 m2 se bude nacházet ve zvýšeném přízemí (okna ca 2 metry nad terénem) cihelného domu s výtahem. Orientace bytu - jih, vnitroblok. Dům bude situován v lokalitě Předních Skvrňan a nabídne klidné místo spojené s dobrou dostupností centra města i nájezdu na páteřní infrastrukturu. Půjde o menší bytový dům zasazený do původní zástavby v ulici Na Okraji. Složen bude výhradně z bytových jednotek. Půjde zejména o malometrážní byty (1kk, 2kk) s podlahovou plochou od cca 30 m2 až do 60 m2. V ceně bytu bude dokončení v daném standardu (bez kuchyňské linky a finálního osvětlení). Prezentované vizualizace se zařízením jsou pouze ilustrativní. Bytový dům je projektován jako nízkoenergetický, energetická třída B. Náklady na Vaše nové bydlení budou velmi nízké, což jistě v budoucnosti oceníte. Vytápění bude řešeno dálkově (Plzeňská Teplárna). K tomuto konkrétnímu bytu lze ještě dokoupit garážové parkovací stání (není povinnost). Výstavba zahájena, předpokládané dokončení červen 2027. Pro bližší informace mne neváhejte kontaktovat.
Vzdušný byt 2+kk v Plzni Bolevci
Nabízíme k prodeji útulný byt o dispozici 2+kk ve Žlutické ulici v Plzni. Bytová jednotka se nachází ve 4. patře částečně revitalizovaného panelového…
Prodej, byty/2+kk, 60 m2, Valtická 1541/7, Severní Předměstí, 32300 Plzeň 1 [ID 80251]
Nabízíme k prodeji byt o dispozici 2+kk a celkové ploše 60 m v jedné z nejžádanějších lokalit města Plzně - Sylván, ulice Valtická. K bytu náleží…