Makléř: Kantner Jan
Telefon: 739 367 ...
E-mail: kantner ...
Zobrazit celý kontaktTelefon: 739 367 279
E-mail: kantner@pubec.cz
Nemovitost nabízí
REALITNÍ KANCELÁŘ PUBEC, s.r.o.
Šafaříkovy sady 2455/5, 301 00 Plzeň
Zobrazit kontakt na RK377 226 767
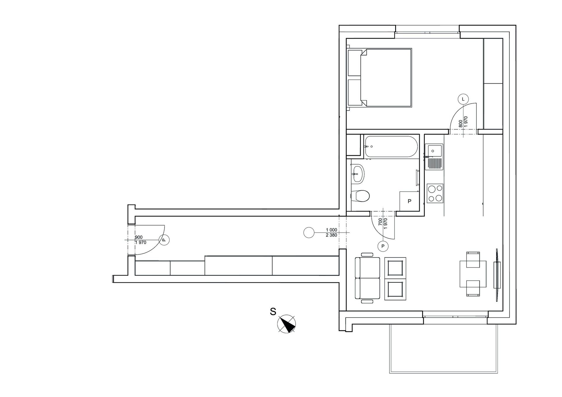
Máme pro Vás připraven nový projekt pod názvem „Byty Na Okraji“. Předmětná jednotka 2kk o výměře 49 m2 + balkon (5 m2) se bude nacházet ve 2. NP cihelného domu s výtahem. Orientace bytu - obývací pokoj s balkonem - jih - vnitroblok, ložnice - sever. Dům bude situován v lokalitě Předních Skvrňan a nabídne klidné místo spojené s dobrou dostupností centra města i nájezdu na páteřní infrastrukturu. Půjde o menší bytový dům zasazený do původní zástavby v ulici Na Okraji. Složen bude výhradně z bytových jednotek. Půjde zejména o malometrážní byty (1kk, 2kk) s podlahovou plochou od cca 30 m2 až do 60 m2. Téměř každý byt bude disponovat balkónem. V ceně bytu bude dokončení v daném standardu (bez kuchyňské linky a finálního osvětlení). Prezentované vizualizace se zařízením jsou pouze ilustrativní. Bytový dům je projektován jako nízkoenergetický, energetická třída B. Náklady na Vaše nové bydlení budou velmi nízké, což jistě v budoucnosti oceníte. Vytápění bude řešeno dálkově (Plzeňská Teplárna). Výstavba zahájena, předpokládané dokončení červen 2027. Pro bližší informace mne neváhejte kontaktovat.
Prodej investičního bytu 2+KK ve Vrchlického ulici v Plzni
Nabízíme Vám ke koupi investiční byt o dispozici 2+KK a výměře 53,76 m2 ve Vrchlického ulici v Plzni. Byt je umístěný ve 4. patře zděného domu s…
Nabízíme v prodeji moderní byt s dispozicí 2KK v žádané lokalitě Inženýrská ul., Plzeň-Bory.
Nabízíme v prodeji moderní byt s dispozicí 2KK s celkovou podlahovou výměrou 58 m. Byt je situovaný ve 2.NP bytového domu v Inženýrské ulici, Plzeň a…