Aktuálně můžete v lokalitě Plzeň vybírat z nabídky 310 bytů.
Přehled nemovitostí: pronájem byty > 2+kk Zpět na přehled nabídek

Pronájem, Byt 2+kk, Plzeň

45 m2

45 m2

osobní

D - Méně úsporná

2833

01.12.2025

Cena: 12500 CZK / objekt / měsíc
Poznámka k ceně: + záloha na služby 1.800 / os, el. energie přepis na nájemce + vratná kauce 2 nájmy včetně služeb + provize 1

Poslat dotaz k nabídce
Zásady používání osobních údajů

Prodejce

Makléř: Eliška Vostracká

Telefon: 607 889 ...

E-mail: eliska. ...

Zobrazit celý kontakt

Nemovitost nabízí

Realitní kancelář DIRMAX

301 00, Klatov Plzeň

www.dirmaxreality.cz

Zobrazit kontakt na RK

Zobrazit všechny nabídky RK

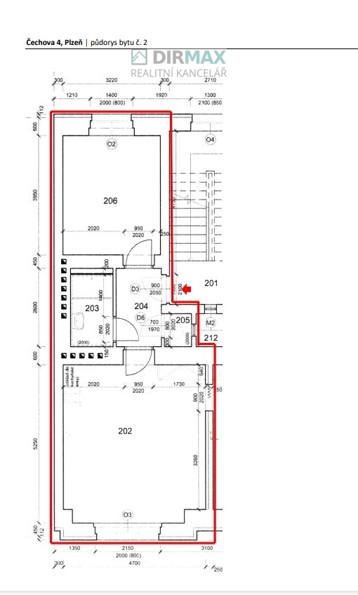
Ve výhradním zastoupení vám nabízíme pronájem pěkného bytu 2+kk, který se nachází v 1.patře bytového domu v ulici Čechova. V domě není výtah. K bytu náleží sklepní kóje. Vytápění a ohřev vody je dálkový. Byt je vybavený kuchyňskou linkou, elektrickou troubou, sklokeramickou deskou, ledničkou a vestavěnou skříní. Jedná se o klidnou a vyhledávanou lokalitu s veškerou občanskou vybaveností i dostupností MHD. K pronájmu volný od 1. 1. 2026. Energetická náročnost "D". Více informací u RK.



Nahoru