Makléř: Kantner Jan
Telefon: 739 367 ...
E-mail: kantner ...
Zobrazit celý kontaktTelefon: 739 367 279
E-mail: kantner@pubec.cz
Nemovitost nabízí
REALITNÍ KANCELÁŘ PUBEC, s.r.o.
Šafaříkovy sady 2455/5, 301 00 Plzeň
Zobrazit kontakt na RK377 226 767
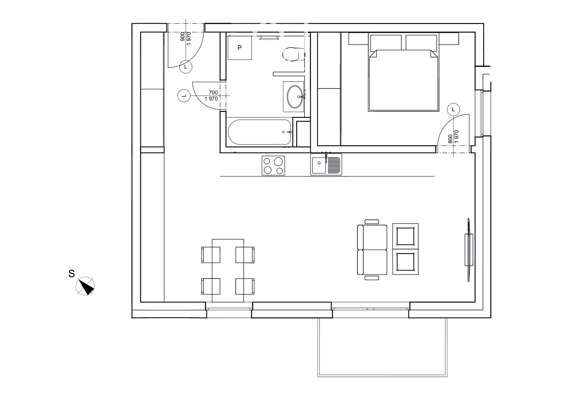
Máme pro Vás připraven nový projekt pod názvem „Byty Na Okraji“. Předmětná jednotka 2kk o výměře 55 m2 + balkon (5 m2) se bude nacházet ve 4. NP cihelného domu s výtahem. Orientace bytu - jih, vnitroblok. Dům bude situován v lokalitě Předních Skvrňan a nabídne klidné místo spojené s dobrou dostupností centra města i nájezdu na páteřní infrastrukturu. Půjde o menší bytový dům zasazený do původní zástavby v ulici Na Okraji. Složen bude výhradně z bytových jednotek. Půjde zejména o malometrážní byty (1kk, 2kk) s podlahovou plochou od cca 30 m2 až do 60 m2. Téměř každý byt bude disponovat balkónem. V ceně bytu bude dokončení v daném standardu (bez kuchyňské linky a finálního osvětlení). Prezentované vizualizace se zařízením jsou pouze ilustrativní. Bytový dům je projektován jako nízkoenergetický, energetická třída B. Náklady na Vaše nové bydlení budou velmi nízké, což jistě v budoucnosti oceníte. Vytápění bude řešeno dálkově (Plzeňská Teplárna). Výstavba zahájena, předpokládané dokončení červen 2027. Pro bližší informace mne neváhejte kontaktovat.
Prodej - Byt 2+kk v Plzni na Slovanech, ulice Slovanská
Hledáte bydlení v Plzni na Slovanech? Naše realitní kancelář Vám exkluzivně nabízí prodej slunného bytu 2+kk v osobním vlastnictví, o celkové…
Prodej moderního bytu 2+kk, s lodžií a garážovým stáním, 63 m2, Plzeň Severní Předměstí
REZERVOVÁNO!! Ve výhradním zastoupení vám nabízíme skvost v podobě moderního bytu 2+kk o celkové ploše 63 m2. Byt se nachází ve 2. nadzemním podlaží…